Подъемник двухстоечный 220 В HorexHL-4.0 NV-EM 220В
Подъемник двухстоечный 220 В, арт. HL-4.0NV-EM.
Конструктивные особенности:
1. Порошковая окраска
2. Асимметричная конструкция рычагов
3. Надежная система блокировки
4. Тип блокировки механический
5. Верхняя синхронизация (тросовая)
6. Два гидроцилиндра
7. Автоматическое отключение
8. Независимая система безопасности отдельно для каждой стойки
9. Регулируемый по высоте подхват (винтовой)
10. Комплект удлинителей подушки входят в стандартную комплектацию 4*105мм
11. Прозрачная ёмкость для масла обеспечивает простую и быструю проверку уровня
12. Защитные резиновые накладки на колонны для защиты при открывании дверей
13. Передние и задние рычаги 2-х секционные
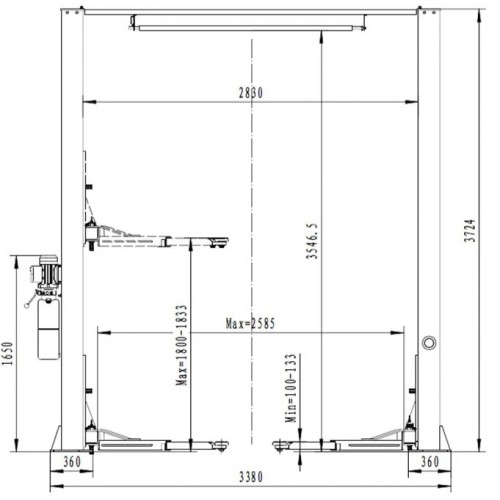
Технические данные:
Тип отключения блокировки - ручной
Толщина металла колонны - 6 мм.
Грузоподъёмность - 4,0 т.
Напряжение питания - 220 В.
Мощность электропривода - 3,0 кВт.
Время подъёма на максимальную высоту - 60 сек.
Максимальная высота подъёма - 1800-1833 мм.
Полная ширина подъёмника - 3380 мм.
Расстояние между колонн - 2830 мм.
Ширина проезда - 2585 мм.
Пределы изменения длины рычагов:
короткий рычаг - 735-1120 мм. (2 секции)
длинный рычаг - 775-1200 мм. (2 секции)
Высота колонн - 3724 мм.
Высота до верхней перемычки - 3546 мм.
Минимальный подхват - 100-133 мм.
Объем гидравлической системы -10 л.
Вес - 630 кг.
Оплата наличными курьеру при получении товара или в пункте самовывоза.
Банковские карты
Оплата производится банковской карточкой через терминал курьера либо в магазине.
Банковской карточкой онлайн при оформлении заказа через корзину сайта
Безопасность совершения платежа обеспечивается современными методами проверки, шифрования и передачи данных по закрытым каналам связи.
ЕвроПочта - Наложенный платеж
Товар отправляется в пункт выдачи товара ЕвроПочта либо доставляется их курьером. Оплата производится в момент получения товара наличными деньгами либо банковской карточкой.
Автолайтэкспресс - Наложенный платеж
Товар отправляется в пункт выдачи товара Автолайтэкспресс либо доставляется их курьерами. Оплата производится в момент получения товара наличными деньгами либо банковской картой.
Безналичный расчет
Самовывоз из пунктов "ЕвроПочта" по всей Беларуси (по Минску не доставляется)
аказ стоимостью менее 100 рублей доставляется до пункта самовывоза за 6 рублей. Список и адреса пунктов самовывоза тут.
Товар доставляется в пункт самовывоза, где за него производится расчет наличными деньгами или пластиковой карточкой. По поступлению заказа, покупателю отправляется СМС.
Доставка курьером по Минску
Бесплатная доставка осуществляется по городу Минску в пределах кольцевой дороги при заказе на сумму от 100 рублей (кроме неделимого товара весом более 30 кг.). При заказе до 100 рублей – стоимость доставки 10 рублей.
Стоимость доставки товара, с общим весом более 30 кг. оговаривается индивидуально с менеджером магазина.
Время доставки:
- по городу Минску с 10.00 до 22.00;
- при доставке в другие города, время доставки оговаривается с менеджером магазина.
Вы также можете указать любое другое удобное время доставки, и покупка будет доставлена в удобное Вам время.
Доставка курьером по Беларуси
Бесплатная доставка осуществляется по всей Беларуси при заказе на сумму от 300 рублей, кроме неделимого товара общим весом более 20 кг. и длиной более 1 метра.. Стоимость доставки такого товара оговаривается индивидуально с менеджером магазина. При заказе до 300 рублей – стоимость доставки 15 рублей Время доставки оговаривается с менеджером магазина.
Вы также можете указать любое другое удобное время доставки, и покупка будет доставлена в удобное Вам время. Иное время доставки, а также время доставки в населенные пункты областей определяется по договоренности с клиентом.
